Description

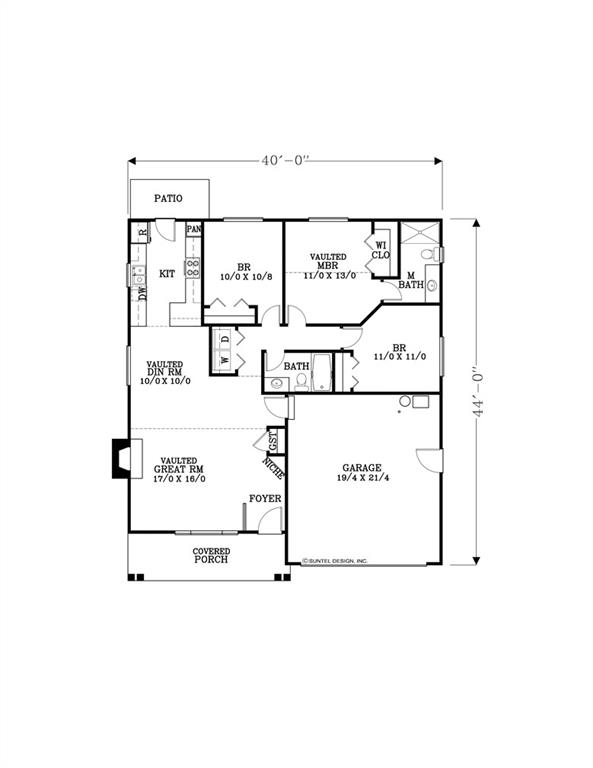
ONE level living! New construction in Liberty for 339K. Storm shelter can be added for additional cost. This open floorplan features everything you need! Quartz countertop, luxury vinyl planking, stainless steel appliances, painted cabinets and so much more. Sit on the front porch and enjoy a beverage. This is a new craftsman style plan. Pictures are renderings and may not be exact. Buyer can pick paint colors, lights and flooring if under contract prior to those being selected. Buyer/Buyers agent to verify sq ft, taxes and school district information.

Address

  • Address 444 N Prarie Street, Liberty, MO 64068
  • Country United States
  • Province/State
  • City/Town
  • Neighborhood
  • Postal code/ZIP 64068
Open on Google Maps

Overview

  • Property ID HMS51684235
  • Price $339,000
  • Property Type
  • Property status
  • Rooms 0
  • Bedrooms 3
  • Bathrooms 2
  • Year Built 2026
  • Size 1,252 SqFt
  • Land area 0 SqFt
  • Garages 1
  • Age Description 2 Years/Less
  • Appliances Dishwasher, Disposal, Microwave, Free-Standing Electric Oven, Stainless Steel Appliance(s)
  • Architectural Style Traditional
  • Basement Slab
  • Full Bathrooms 2
  • Total Bedrooms 3
  • City Liberty
  • County Clay
  • Dining Area Features Liv/Dining Combo
  • Directions Kansas or 152 to Prairie, north on Prairie to homes on right.
  • Flooring Carpet, Luxury Vinyl
  • Floor Plan Features Ranch
  • Garage Spaces 2
  • Interior Features Painted Cabinets, Pantry, Vaulted Ceiling(s)
  • Laundry Features Bedroom Level, Laundry Closet
  • Lot Features City Limits, City Lot, Level
  • Parking Features Attached
  • Patio and Porch Features Porch
  • Postal Code 64068
  • High School District Liberty
  • Subdivision Name Other
  • Year Built 2026

Get Directions

Contact

Michael Turner

Property Agent

Liberty, MO 64068
(866) 866-6590
Other Properties
Please enter your Name!
Please enter your Phone!
Please enter your valid Email!
Please enter your Message!