Description

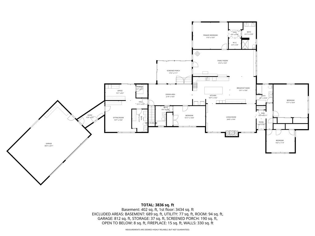
Is there a 4-bed ranch in Excelsior Springs with acreage, modern updates, and space to entertain? This beautifully updated home offers over 3,500 finished sqft on the main level, set on 1.5 acres with expansive indoor living, curated outdoor spaces, and rare features including a 3-car garage and 30×30 barn.

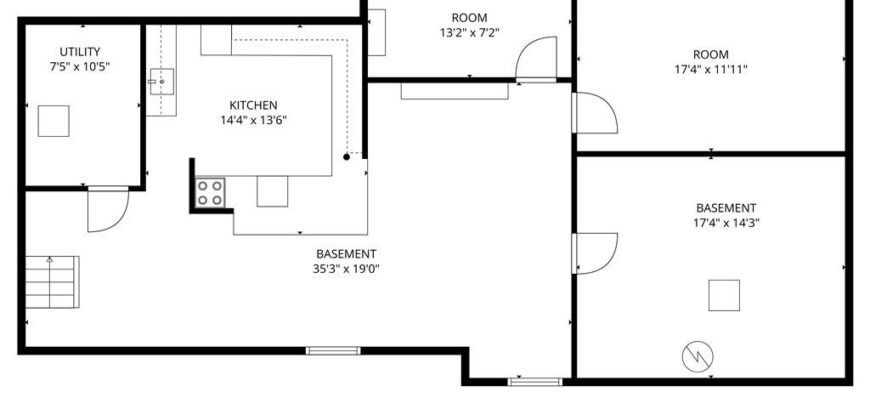
Welcome to this 4-bed ranch home in Excelsior Springs under $600K, a fully updated mid century modern retreat designed for both everyday comfort and elevated entertaining. Spanning over 3,500 sqft on the main level, the home features a newly expanded kitchen with quartz countertops, new cabinetry, updated appliances, and a large island that opens seamlessly to the living room with a wood burning stove. A generous dining room accommodates large gatherings, while the all seasons room doubles as a greenhouse and opens to an expansive patio and deck. The main level also includes a laundry room with half bath and a versatile bonus room ideal for an office, craft space, or study. The private primary suite offers a spacious bath and abundant closet space, complemented by three additional large bedrooms and a total of 3.5 baths. The unfinished basement provides excellent storage and includes a secondary kitchen for canning or extended cooking needs. Situated on 1.5 acres, the outdoor experience is unmatched with lush, resort style front landscaping, a trellis seating area, and a backyard oasis featuring multiple patios and decks, walking trails, garden beds, a pond, and a chicken coop. Additional highlights include a 3-car garage and a 30×30 barn for equipment, hobbies, or extra storage. This 4-bed ranch home in Excelsior Springs under $600K offers a rare blend of modern updates, acreage, and lifestyle flexibility.

Address

  • Address 121 Highland Park Avenue, Excelsior Springs, MO 64024
  • Country United States
  • Province/State
  • City/Town
  • Neighborhood
  • Postal code/ZIP 64024
Open on Google Maps

Overview

  • Property ID HMS51785018
  • Price $595,000
  • Property Type
  • Property status
  • Rooms 11
  • Bedrooms 4
  • Bathrooms 4
  • Year Built 1960
  • Size 3,429 SqFt
  • Land area 62,291 SqFt
  • Garages 1
  • Age Description 51-75 Years
  • Appliances Dishwasher, Microwave, Refrigerator, Electric Range
  • Architectural Style Traditional
  • Basement Full
  • Full Bathrooms 3
  • Half Bathrooms 1
  • Total Bedrooms 4
  • City Excelsior Springs
  • County Clay
  • Dining Area Features Eat-In Kitchen,Formal
  • Directions North on 10 highway through Excelsior springs, turn right on Titus St to Highland Park Avenue, turn left to house on right.
  • Fencing Privacy, Wood
  • FireplaceYN 1
  • Total Fireplaces 2
  • Flooring Wood
  • Floor Plan Features Ranch
  • Garage Spaces 3
  • Interior Features Custom Cabinets, Kitchen Island, Vaulted Ceiling(s)
  • Laundry Features Laundry Room, Main Level
  • Lot Features Acreage, Pond(s)
  • Parking Features Attached, Garage Door Opener, Garage Faces Front
  • Patio and Porch Features Patio, Screened
  • Postal Code 64024
  • High School District Excelsior Springs
  • Subdivision Name Other
  • Year Built 1960

Get Directions

Contact

Michael Turner

Property Agent

Liberty, MO 64068
(866) 866-6590
Other Properties
Please enter your Name!
Please enter your Phone!
Please enter your valid Email!
Please enter your Message!