Description

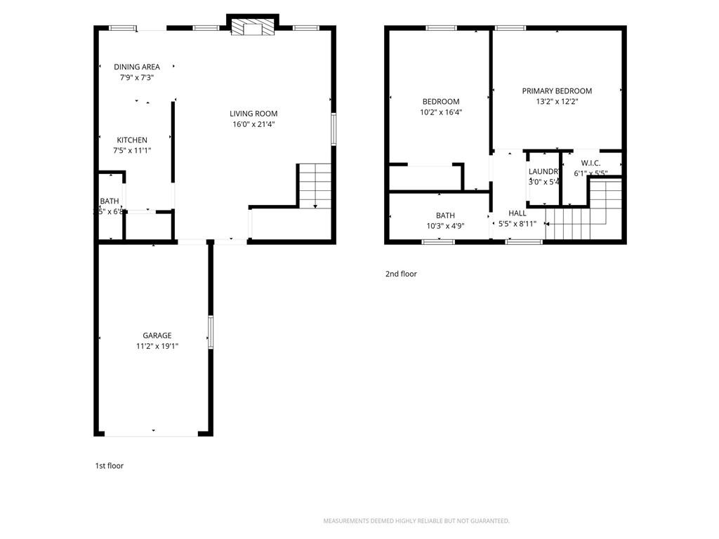
Great opportunity for investment or first time home buyer. Bones are good, but does need some cosmetic updates. The home features a bright and airy layout with neutral tones throughout, ready for your personal touch. A cozy gas fireplace is the focal point for the home’s living room. In the kitchen, all appliances stay and the deck is accessed through the glass door in the eat-in kitchen. Both bedrooms are generously sized with plush carpeting, ceiling fans for year-round comfort, and ample closet space—including a convenient walk-in closet in the primary suite and mirrored sliding doors in the second bedroom. Enjoy a full bathroom upstairs featuring a large vanity and a practical tub/shower combo, plus a convenient half-bath on the main level for guests. No more trips to the laundromat! This unit includes a dedicated laundry closet on bedroom level, equipped with a washer and dryer set and overhead shelving for extra storage. Whether you’re a first-time homebuyer or looking to add to your investment portfolio, this townhouse is not to be missed. Schedule your showing TODAY.

Address

  • Address 8749 NW 82nd Street, Kansas City, MO 64152
  • Country United States
  • Province/State
  • City/Town
  • Neighborhood
  • Postal code/ZIP 64152
Open on Google Maps

Overview

  • Property ID HMS51659946
  • Price $175,000
  • Property Type
  • Property status
  • Rooms 0
  • Bedrooms 2
  • Bathrooms 2
  • Year Built 1990
  • Size 1,056 SqFt
  • Land area 5,236 SqFt
  • Garages 1
  • Age Description 31-40 Years
  • Appliances Dishwasher, Dryer, Microwave, Refrigerator, Electric Range, Washer
  • Architectural Style Traditional
  • Basement Slab
  • Full Bathrooms 1
  • Half Bathrooms 1
  • Total Bedrooms 2
  • City Kansas City
  • County Platte
  • Dining Area Features Eat-In Kitchen
  • Directions Take I-29 N to exit 8 for NW Barry Rd. Turn left onto NW Barry Rd. At N Everton Ave turn left. Everton turns into NW 82nd St. Home will be on the left.
  • Elementary School Prairie Point
  • Fencing Metal
  • FireplaceYN 1
  • Total Fireplaces 1
  • Flooring Carpet
  • Floor Plan Features 2 Stories
  • Garage Spaces 1
  • High School Park Hill
  • Interior Features Ceiling Fan(s), Stained Cabinets, Walk-In Closet(s)
  • Laundry Features Bedroom Level, Upper Level
  • Lot Features City Limits, Many Trees
  • Middle School Congress
  • Parking Features Attached, Garage Door Opener, Garage Faces Front
  • Patio and Porch Features Deck
  • Postal Code 64152
  • High School District Park Hill
  • Subdivision Name Copper Creek
  • Telecom High Speed Internet - Available
  • Year Built 1990

Video

https://client.jordanwyattashley.com/8749-NW-82nd-St/idx

Virtual tour

Get Directions

Contact

Michael Turner

Property Agent

Liberty, MO 64068
(866) 866-6590
Other Properties
Please enter your Name!
Please enter your Phone!
Please enter your valid Email!
Please enter your Message!