Description

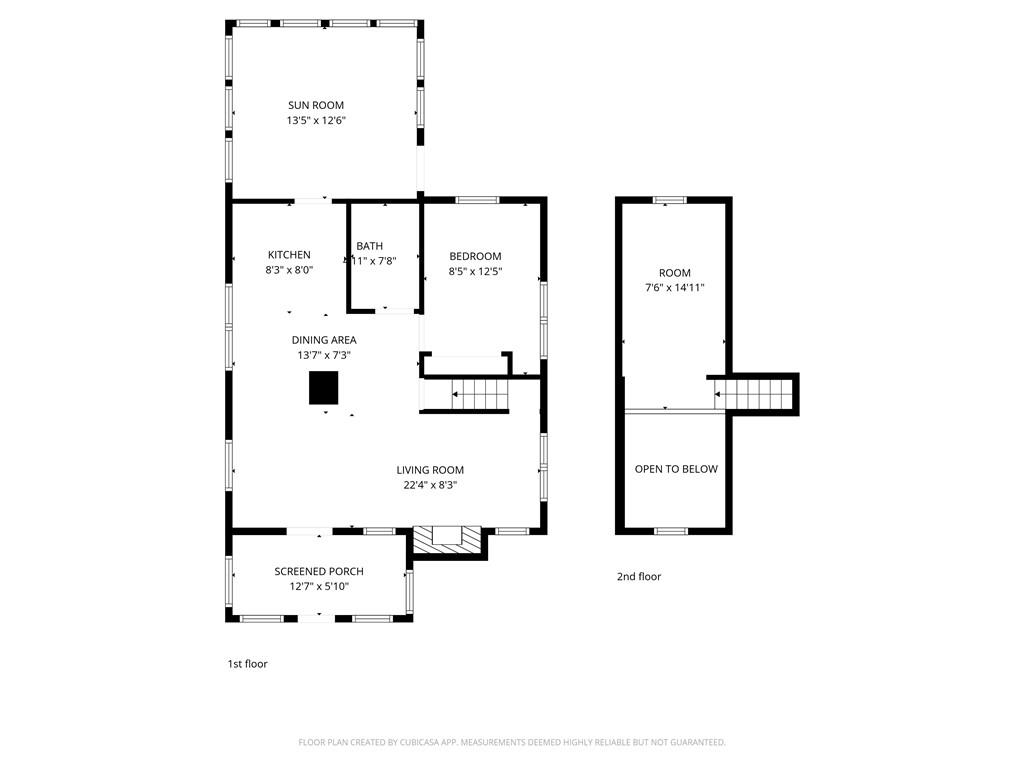
This charming retreat offers the rare luxury of access to the private Houston Lake, tucked away in a serene Kansas City setting. This gem was one of the first homes built in Houston Lake but has had major updates including all new electrical & plumbing plus bathroom & kitchen remodels. The bright open-concept kitchen, dining, and living area create an inviting space for everyday living or entertaining, while a fully enclosed sunroom provides the perfect spot to relax and take in peaceful views year-round. The main level features a comfortable bedroom and full bathroom, and upstairs, a spacious loft adds flexibility for a second bedroom, home office, or playroom. Whether you’re looking for a weekend escape or a cozy full-time residence, this unique property blends comfort, character, and a connection to nature.

Address

  • Address 3550 NW Edgewater Trail, Kansas City, MO 64151
  • Country United States
  • Province/State
  • City/Town
  • Neighborhood
  • Postal code/ZIP 64151
Open on Google Maps

Overview

  • Property ID HMS51681500
  • Price $210,000
  • Property Type
  • Property status
  • Rooms 8
  • Bedrooms 2
  • Bathrooms 1
  • Year Built 1932
  • Size 1,025 SqFt
  • Land area 10,681 SqFt
  • Age Description 76-100 Years
  • Appliances Dishwasher, Disposal, Microwave, Refrigerator, Electric Range
  • Architectural Style Traditional
  • Association Amenities Play Area
  • Association Fee 450
  • Association Fee Includes Trash
  • Basement Unfinished, Stone/Rock, Walk-Out Access
  • Full Bathrooms 1
  • Total Bedrooms 2
  • City Kansas City
  • County Platte
  • Dining Area Features Kit/Dining Combo,Liv/Dining Combo
  • Directions Take MO-152, exit onto US-169 South then I-29 North/US 71 N, using right lane continue on I-29 North. Take exit toward NW 56th St, merge onto NW Roanridge Rd, then left onto NW Adrian Ave. Turn left onto NW Edgewood Trail, left onto NW/Edgewater Trail/NW Wagon Trail.
  • Elementary School Southeast
  • Fencing Metal
  • FireplaceYN 1
  • Total Fireplaces 1
  • Flooring Carpet, Wood
  • Floor Plan Features 1.5 Stories,Ranch
  • High School Park Hill South
  • Interior Features Ceiling Fan(s)
  • Laundry Features Lower Level
  • Lot Features Many Trees
  • Middle School Walden
  • Parking Features Off Street
  • Postal Code 64151
  • High School District Park Hill
  • Subdivision Name Venetian Gardens
  • Telecom High Speed Internet - Available
  • Year Built 1932

Get Directions

Contact

Michael Turner

Property Agent

Liberty, MO 64068
(866) 866-6590
Other Properties
Please enter your Name!
Please enter your Phone!
Please enter your valid Email!
Please enter your Message!