11236 N Randolph Avenue, Kansas City, MO 64157
Description
Welcome to easy living in the desirable Auburndale Patio Homes! This maintenance-provided villa offers true one-level living with a thoughtful layout and comfortable spaces throughout.
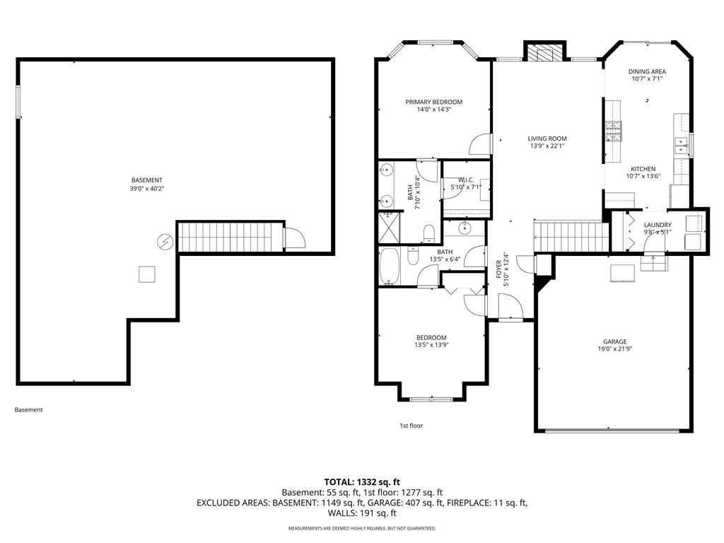
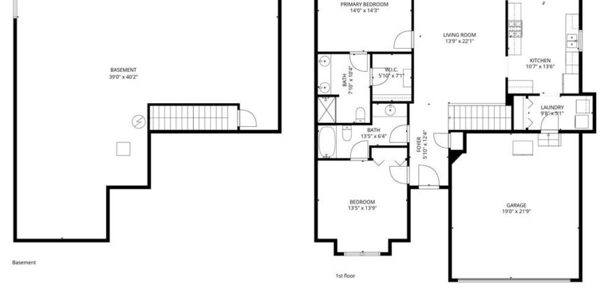
Step inside to a spacious living room featuring a cozy fireplace, with large windows on each side, complete with plantation shutters that fill the space with natural light . Just off the living room, the eat-in kitchen offers white cabinetry, granite countertops, stainless steel appliances, and a convenient built-in desk with upper cabinets—perfect for staying organized. A sliding door leads directly to the patio, making it easy to enjoy outdoor relaxation.
The kitchen also provides access to the laundry room and garage for everyday convenience.
On the opposite side of the home, you’ll find the private primary suite complete with a walk-in closet, double vanity, and walk-in shower. The second bedroom features a cathedral ceiling and a large front-facing window, along with a walk-through bathroom that connects to the main hallway—ideal for guests.
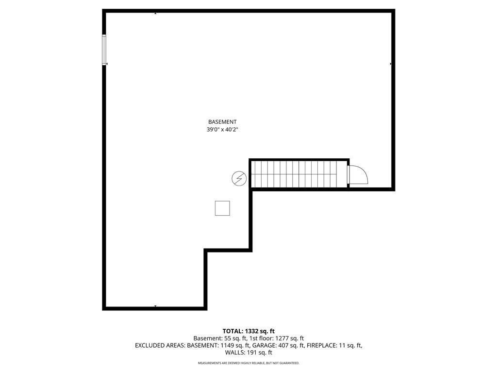
The unfinished basement offers excellent potential for additional living space, including a large window suitable for a future third bedroom.
Low-maintenance living, a functional floor plan, and room to grow—this one checks all the boxes!
Address
-
Address 11236 N Randolph Avenue, Kansas City, MO 64157
-
Country United States
-
Province/State MO
-
City/Town Kansas City
-
Neighborhood AUBURNDALE PATIO
-
Postal code/ZIP 64157
Overview
- Property ID HMS51794950
- Price $365,000
- Property Type Villa
- Property status Active
- Rooms 7
- Bedrooms 2
- Bathrooms 2
- Year Built 2006
- Size 1,404 SqFt
- Land area 0.06 SqFt
- Label OPEN HOUSE: 2026-04-19
- Garages 1
- Age Description 16-20 Years
- Appliances Dishwasher, Disposal, Humidifier, Microwave, Electric Range
- Architectural Style Traditional
- Association Fee 150
- Association Fee Includes Lawn Service, Snow Removal
- Basement Concrete, Full, Unfinished, Sump Pump
- Full Bathrooms 2
- Total Bedrooms 2
- City Kansas City
- County Clay
- Dining Area Features Country Kitchen
- Directions NE Cookingham Dr. south on NE 112th St, right on N Smalley Ave. Left on N Randolph Ave, destination on the right
- Elementary School Kellybrook
- FireplaceYN 1
- Total Fireplaces 1
- Flooring Carpet, Wood
- Floor Plan Features Ranch
- Garage Spaces 2
- High School Liberty North
- Interior Features Ceiling Fan(s), Stained Cabinets, Walk-In Closet(s)
- Laundry Features Laundry Room, Off The Kitchen
- Lot Features Corner Lot, Cul-De-Sac
- Middle School South Valley
- Parking Features Built-In
- Patio and Porch Features Patio
- Postal Code 64157
- High School District Liberty
- Subdivision Name AUBURNDALE PATIO
- Year Built 2006
- Open House Date Sun April 19