Description

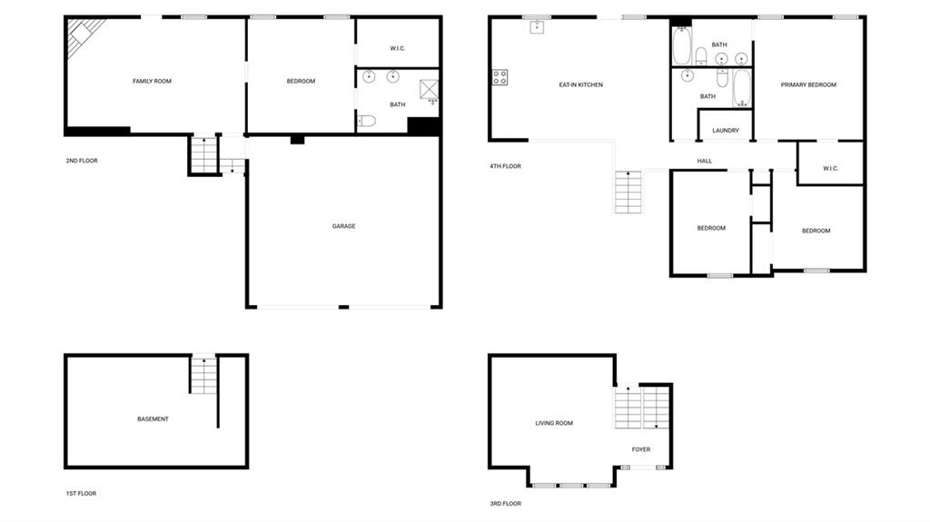
Welcome to 1105 Fox Run Trl, a residence featuring new flooring throughout the home, enhancing its appeal. The property includes a comforting fireplace, and the kitchen is equipped with all stainless steel appliances, an accent backsplash, and a functional island. The primary bedroom contains double closets, complementing the double sinks in the primary bathroom. Outside, a deck provides an area overlooking a fenced-in backyard. This home provides updated comfort and thoughtful amenities for easy living.. Included 100-Day Home Warranty with buyer activation

Address

Open on Google Maps

Overview

  • Property ID HMS51974292
  • Price $401,000
  • Property Type
  • Property status
  • Rooms 3
  • Bedrooms 4
  • Bathrooms 3
  • Year Built 2004
  • Size 2,247 SqFt
  • Land area 8,276 SqFt
  • Garages 1
  • Age Description 21-30 Years
  • Basement Finished
  • Full Bathrooms 3
  • Total Bedrooms 4
  • City Platte City
  • County Platte
  • Directions Head south on Running Horse Rd Turn right onto Maple Farm Rd Turn right onto Fox Run Trail
  • FireplaceYN 1
  • Total Fireplaces 1
  • Floor Plan Features Front/Back Split
  • Garage Spaces 2
  • Parking Features Attached
  • Postal Code 64079
  • High School District Platte County R-III
  • Subdivision Name Estates Of Platte Valley
  • Year Built 2004

Features

Get Directions

Contact

Michael Turner

Property Agent

Liberty, MO 64068
(866) 866-6590
Other Properties
Please enter your Name!
Please enter your Phone!
Please enter your valid Email!
Please enter your Message!